服务热线
155 3750 9966
砂带原纸是用于制造连锁运转的砂带纸,主要应用于磨具制造业。砂带原纸要求防静电、防渗透、防卷曲纸张两面性能不一致,一面适于印刷,一面适于静电置砂;纸张要求物理强度高、耐磨性能好、不分层、不开裂、不变形;厚度定量均匀,全幅高平整度。

提供一种强度高、不分层、柔韧性、防渗透性好的强力砂带基纸。
砂带原纸主要采用60%的漂白木浆和40%的硫酸盐本色本浆为主要原材料制造。配料中加入占基纸木浆干纤维总量质量比:5‰PAE湿强剂;3%的淀粉胶;2%的中性胶(AkD胶乳)。
制造流程:木浆→碎解分离→筛选净化→浓缩储存→磨浆→配料→抄造→分切复卷 →打包入库。

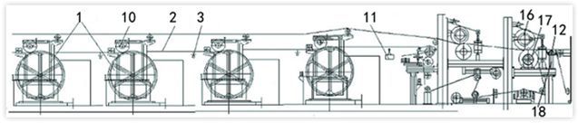
图1 湿部施胶装置
1—成形圆网 2—湿纸页 3—喷施胶装置 10—伏辊 11—涂膜厚度检测装置 12—单面浸渍施胶装置 16—压榨上辊 17—压榨下辊 18—浸渍机架
如图1所示,造纸用湿部施胶装置中,造纸用网部包括伏辊和成形圆网,伏辊和成形圆网共同构成成形辊组,一般网部共有成辊形组3~5对,湿纸页在经成形辊组时主要是进行脱水和成形。在成形辊组之间湿纸页的下面设有喷施胶装置,该装置有多个向上喷胶的喷嘴,多个喷嘴水平放置且放置方向和湿纸页移动方向垂直;喷施胶装置下面可设有回收装置。喷施胶装置喷涂胶主要是2%的丁苯。
抄造过程的网部和压榨部分别单面涂喷2%丁苯和单面浸渍施胶5‰MF;其中丁苯和MF之间可发生胶链反应。
如图1所示,在网部的尾部的湿纸页运行下方可通过支架设置一对红外探头,一个探头用于发射红外线光源,另一个接收湿纸页反射后的红外线光源,并与计算机装置进行连接;湿纸页在网部的成形辊上传输。在检测时,首先会在计算机中设置好标准湿纸页样所反射的光线的值。

在生产时,当成形辊的湿纸页通过红外探头下方时,红外探头同时会搜集到湿纸页表面反射的光线的量,然后输出相应的感应信号,计算机依据感应信号确定识别参数检测值,依据识别参数检测值计算出湿纸页的涂膜厚度,再将计算出的湿纸页的涂膜厚度与计算机中的预设值进行比较,当差值超过一定范围时,即判定为不合格,当差值在预设的范围内时,即为合格产品。
对于不合格的产品,将发出预警信号,机台操作人员收到信号后,及时调整机器参数。

图2 压榨部浸渍施胶装置
2—湿纸页 13—单面浸渍施胶辊 14—单面浸渍胶槽 15—胶面
如图2的压榨部B,压榨部分为压榨区和反压榨区,单面浸渍施胶装置置于压榨区和反压榨区之间,湿纸页经压榨上辊和压榨下辊之间通过进行压榨;浸渍施胶装置包括浸渍机架,浸渍机架的上端通过辊座连接有单面浸渍施胶辊,单面浸渍施胶辊的下侧设有单面浸渍胶槽,单面浸渍施胶辊上部置于压榨后的湿纸页的下部进行涂胶,单面浸渍施胶辊的下部浸于胶面之下。单面浸渍胶槽的胶液为5‰MF(三聚氰胺甲基树脂)。

图3 干燥部浸渍施胶装置
2—湿纸页 19—浸渍施胶辊 20—浸渍胶槽
如图3,干燥部浸渍施胶装置中,一对浸渍施胶辊将纸页导入浸渍胶槽的胶液内,其中浸渍胶槽的胶液为按质量比例的5‰甲基纤维素、1%聚乙烯丙酸树脂和0.5%聚乙烯醇的混合物。

图4 网部涂喷施胶装置
4—喷嘴 5—吸膜泵 6—储存槽 7—气罐 8—过滤网 9—溶解槽
如图4,网部涂喷施胶装置包括吸膜泵、储存槽、气罐、过滤网、溶解槽和若干个喷嘴;溶解槽把胶料溶解,胶料经过滤网过滤后进入储存槽;储存槽内的胶料经气罐加压后由吸膜泵抽吸到若干个喷嘴;若干个喷嘴并列水平设置,涂喷施胶装置的施胶管上还设有调节阀。
聚酯编织干网按种类划分,可分为一层半干网、双层干网、扁丝干网、双径扁丝干网及特种材质编织干网(平网)。
计算机应具有的功能,如计算出膜层厚度的步骤等相类似,网部喷胶装置和压榨部浸渍施胶装置都设有施胶回流装置也就是回收装置。
和普通的涂喷装置和涂胶量相比,能显著提高纸的质量,并能提高纸浆的利用率;主要是下面涂胶使得涂胶量少。
1.网部喷胶的优点(丁苯):
(1)解决分层现象,增加层间结合力30%,同时增加纸板物理抗张强度40%;(2)解决渗透物理过程,使产品双面性能可以不一致,为后续一面适印刷,一面适用静电置砂提供保证;(3)对纸张与纸板抗静电、抗卷曲提供条件,同时减少用胶量。
2.压榨部单面浸胶的作用(MF):
(1)解决纸张单面不透油,纸张具备单面浸渍的作用;(2)湿纸页更容易适应静电置砂。
3. 烘干部半干表胶:(1)使纸张整体加强防渗透,防静电;(2)增加纸张表面张力,提高纸张物理强度。
4.浆内施胶:
(1)解决整体纤维弹性,同时增加纤维粘结力;提高物理强度;(2)防止纸张渗透静电产生,为后续工艺提供保证。
普通砂纸原纸内黏切压力≥15N/mm,而该砂纸原纸内黏切压力≥70N/mm;普通砂纸的原纸拉力≥200N/15mm;而该砂纸原纸原纸拉力≥320N/15mm。
